Projetos Industriais Inovadores
Serviços técnicos em engenharia e arquitetura com ênfase em pré-fabricados de concreto.
Projeto Wika do Brasil
14.000M² - Boituva/SP Rod. Pres. Castello Branco








Beleza e Função em um projeto só
Know-how adquirido através de inúmeros projetos e décadas de experiência.


Projeto de Galpão para Locação
Flexibilidade e Custo - Benefício
Este projeto foi desenvolvido com foco no atendimento às principais demandas do mercado de locação industrial e comercial, buscando o equilíbrio entre funcionalidade, flexibilidade de uso e viabilidade econômica para o investidor.
O layout e as especificações construtivas foram pensados para permitir a adaptação a diferentes tipos de negócios, ampliando o potencial de ocupação do imóvel. Além disso, foram considerados critérios de eficiência construtiva e racionalização de custos, garantindo um investimento competitivo, sem abrir mão da qualidade e da segurança estrutural.
O resultado é um galpão versátil, com infraestrutura adequada para receber variados perfis de locatários, atendendo às exigências normativas e proporcionando um excelente custo-benefício ao investidor.






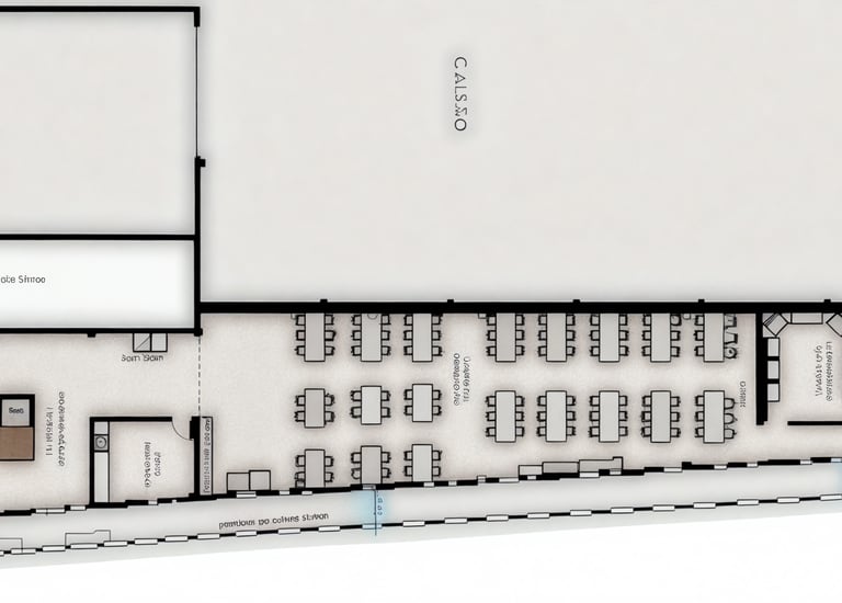
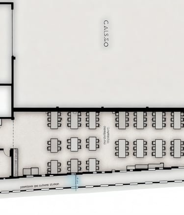
Projeto de Refeitório Corporativo
Expansão e Qualidade de Ambiente de Trabalho
Este projeto foi desenvolvido para atender à demanda de crescimento da empresa, oferecendo um espaço adequado para as refeições e momentos de descanso dos colaboradores. Além da área destinada ao serviço de alimentação, o projeto contemplou a criação de uma área de descompressão e convivência, proporcionando um ambiente mais agradável e acolhedor para os funcionários durante os intervalos de trabalho.
Todas as soluções adotadas foram elaboradas seguindo as normas de segurança, saúde e higiene alimentar, bem como as diretrizes de acessibilidade, garantindo o bem-estar dos usuários. O resultado é um espaço funcional e integrado, que valoriza a qualidade de vida no ambiente corporativo e acompanha o ritmo de expansão da empresa.


Projeto AP
Ampliação de Setor Logístico O Projeto AP foi desenvolvido para atender à necessidade de expansão da empresa, resultante de seu crescimento operacional. O foco principal foi a reestruturação e ampliação das áreas destinadas a carga, descarga e armazenamento de materiais. O novo layout foi pensado para otimizar o fluxo logístico, garantindo maior eficiência nas operações diárias e proporcionando melhores condições de trabalho para a equipe envolvida no processo de movimentação de mercadorias. Além da ampliação física, o projeto considerou aspectos funcionais e de segurança, atendendo às normas vigentes e às especificidades do setor.


Projeto BestCenter – Centro Comercial em Piracicaba/SP
O projeto desenvolvido para o BestCenter Piracicaba, localizado em uma área estratégica e de grande visibilidade na cidade, foi concebido para atender a uma demanda comercial específica, com a implantação de duas lojas âncoras, além de espaços destinados a estabelecimentos de pequeno e médio porte. Desde a análise de viabilidade do terreno até a elaboração dos projetos executivos, construtivos e o processo de legalização da obra, nosso escritório acompanhou todas as etapas, garantindo o atendimento às exigências legais e comerciais. O conceito arquitetônico priorizou a facilidade de acesso, a integração visual das fachadas e a oferta de estacionamento amplo, visando proporcionar conforto aos consumidores e atrair diferentes perfis de lojistas. O resultado é um centro comercial moderno e funcional, que aproveita ao máximo o potencial da localização privilegiada e contribui para o desenvolvimento da região.


Está planejando construir ou expandir a sua empresa?
Confie em quem entrega qualidade com mais de duas décadas de experiência, confie na MODELPRO.
150+
20
Anos de experiência
Projetos realizados


