Projetos Comerciais Inovadores
Serviços técnicos em engenharia e arquitetura com ênfase em pré-fabricados de concreto.
Projeto BestCenter | Centro Comercial em Boituva/SP
O projeto desenvolvido para o BestCenter, localizado em Boituva-SP, abrangeu todas as etapas desde a análise de viabilidade do terreno até a elaboração dos projetos executivos, construtivos e o processo de legalização da obra junto aos órgãos competentes. O principal objetivo foi criar um espaço comercial versátil, capaz de atender tanto a demanda de uma loja âncora quanto de estabelecimentos de pequeno e médio porte, oferecendo flexibilidade para diferentes tipos de negócios. O layout foi planejado para garantir facilidade de acesso e circulação, com a inclusão de estacionamento amplo, visando proporcionar conforto aos usuários e favorecer a viabilidade comercial do empreendimento. O resultado é um pequeno centro comercial, que agrega valor à região e amplia as oportunidades de negócios locais.








Beleza e Função em um projeto só
Know-how adquirido através de inúmeros projetos e décadas de experiência.


Banco do Brasil Boituva
O projeto foi desenvolvido para a construção de uma nova unidade do Banco do Brasil, contemplando todas as especificações técnicas e requisitos operacionais da instituição. Desde a concepção até a aprovação junto aos órgãos competentes, nosso escritório foi responsável por toda a elaboração dos projetos construtivos e executivos. Um dos principais focos deste trabalho foi garantir a acessibilidade plena, atendendo à legislação vigente e às diretrizes internas do banco, além de assegurar que todas as necessidades funcionais e de atendimento ao público fossem plenamente atendidas.






Projeto de Motel – Rodovia Castelo Branco/SP
Desenvolvido para uma área às margens da Rodovia Castelo Branco, este projeto de motel exigiu um cuidado especial com o controle de fluxos internos e externos, garantindo tanto a eficiência operacional quanto a privacidade dos clientes, aspectos essenciais para o bom funcionamento desse tipo de empreendimento. O layout foi cuidadosamente planejado para permitir a circulação independente entre hóspedes e equipe de serviço, com acessos restritos para lavanderia, cozinhas, áreas técnicas e setores administrativos, garantindo a discrição e a logística adequada para as rotinas internas. Além disso, o projeto buscou a máxima ocupação e aproveitamento do terreno, criando diferentes tipologias de unidades, de modo a atender a diversos perfis de público e oferecer variedade de experiências. A solução arquitetônica adotada alia funcionalidade, privacidade e conforto, respeitando todas as exigências normativas aplicáveis ao segmento.


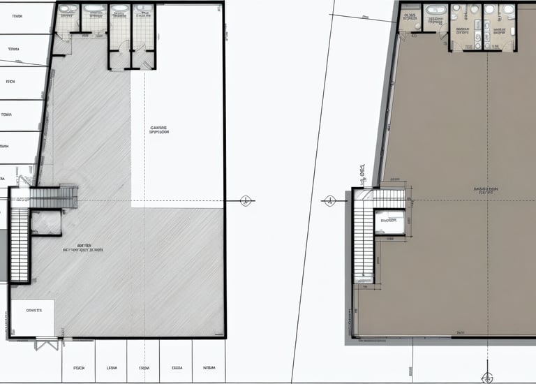
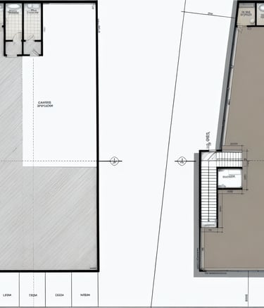
Projeto de Supermercado – Implantação em Cabreúva/SP
O projeto foi desenvolvido para a implantação de um supermercado na cidade de Cabreúva/SP, com foco em atender tanto às demandas operacionais do empreendimento quanto ao conforto e à experiência do cliente. Desde a concepção inicial, o layout foi planejado considerando o fluxo de vendas, a logística de estoque, as áreas de recebimento e expedição de mercadorias, além da circulação interna, visando garantir eficiência no funcionamento diário. Outro aspecto fundamental do projeto foi a criação de uma área de estacionamento ampla, com acessos facilitados ao imóvel, assegurando comodidade aos clientes e boa integração com o entorno urbano. O resultado é um empreendimento funcional e atrativo, pensado para proporcionar melhor desempenho comercial e uma experiência de compra agradável.




Projeto de Supermercado – Implantação em Cabreúva/SP
O projeto foi desenvolvido para a implantação de um supermercado na cidade de Cabreúva/SP, com foco em atender tanto às demandas operacionais do empreendimento quanto ao conforto e à experiência do cliente. Desde a concepção inicial, o layout foi planejado considerando o fluxo de vendas, a logística de estoque, as áreas de recebimento e expedição de mercadorias, além da circulação interna, visando garantir eficiência no funcionamento diário. Outro aspecto fundamental do projeto foi a criação de uma área de estacionamento ampla, com acessos facilitados ao imóvel, assegurando comodidade aos clientes e boa integração com o entorno urbano. O resultado é um empreendimento funcional e atrativo, pensado para proporcionar melhor desempenho comercial e uma experiência de compra agradável.


Está planejando construir ou expandir a sua empresa?
Confie em quem entrega qualidade com mais de duas décadas de experiência, confie na MODELPRO.
150+
20
Anos de experiência
Projetos realizados


